030 6377606 info@viva-casa.it























83 Mq
3 locali
2 camere
1 box auto
Rif. Annuncio: VTPZ546 del 25/09/2025
Vendita
€ 49.000
Pezzaze
030 6377606
In una splendida zona residenziale di Pezzaze, circondata da verde e tranquillità, proponiamo in vendita un trilocale in ottime condizioni, pronto per essere abitato senza alcun intervento. L’immobile si trova al piano rialzato di un piccolo contesto di sole quattro unità abitative, una soluzione ideale per chi desidera privacy, silenzio e qualità della vita.
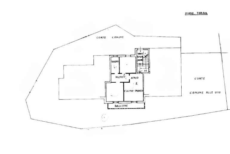
La casa si apre su una luminosa zona soggiorno con cucina a vista, arricchita da un comodo balcone che affaccia sullo straordinario panorama montano circostante. Un disimpegno dove troviamo un armadio a muro su misura perfettamente integrato conduce alla zona notte, una spaziosa camera matrimoniale con balcone, una cameretta doppia e un bagno finestrato dotato sia di vasca che di doccia, per un comfort totale.
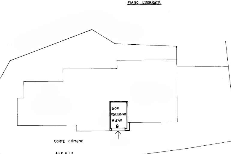
A completare la proprietà, al piano seminterrato, si trovano un locale tecnico valido anche come cantina ed un ulteriore cantina molto comoda e un box auto privato, perfetto per chi cerca praticità e funzionalità e spazi aggiuntivi.
L’immobile si inserisce in un contesto estremamente tranquillo ma non isolato, con tutti i principali servizi a portata di mano: scuole, negozi, trasporti e attività essenziali sono facilmente raggiungibili a piedi. È la soluzione perfetta sia come prima casa sia come abitazione per chi desidera evadere dal caos cittadino, godendo della natura e del silenzio senza rinunciare alla comodità.
Il prezzo proposto è un vero affare, soprattutto considerando lo stato impeccabile dell'immobile. Una casa accogliente, funzionale e già pronta per essere vissuta: un’occasione unica per chi cerca valore reale al giusto prezzo.
Contattaci per maggiori informazioni o per fissare una visita.
IMMOBILIARE VIVA CASA
Tel. 0306377606
Mail: info@viva-casa.it