030 6377606 info@viva-casa.it














90 Mq
3 locali
2 camere
Rif. Annuncio: VTL568 del 03/03/2026
Vendita
€ 79.000
Lumezzane
030 6377606
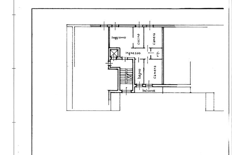
Proponiamo in vendita un comodo trilocale situato nella frazione di San Sebastiano, inserito in una palazzina ordinata e servita da ascensore, in posizione strategica e comodamente collegata ai principali servizi della zona. L’appartamento è già stato ristrutturato e mantenuto in condizioni ottime, si distingue per una distribuzione degli spazi funzionale e ben equilibrata.
L’ ampio ingresso, sfruttabile, introduce l'abitazione conducendo alla zona giorno, dove troviamo un luminoso soggiorno semi-separato dalla cucina abitabile, con possibilità di creare un ambiente openspace. La zona notte comprende una spaziosa camera matrimoniale e una camera doppia/tripla, entrambe caratterizzate da ottima vivibilità e versatilità d’arredo. Completa il reparto notte un pratico ripostiglio, elemento sempre più raro e prezioso nella gestione quotidiana degli spazi domestici ed il bagno, finestrato e dotato di doccia, che offre un ulteriore valore aggiunto, ovvero l’accesso diretto al balcone attualmente adibito a zona lavanderia, soluzione discreta e funzionale che ottimizza l’organizzazione interna dell’abitazione.
L’immobile viene venduto completo di arredo, una scelta che rappresenta un concreto valore aggiunto: nessun intervento immediato necessario, nessuna ulteriore spesa da sostenere, ma una casa pronta da vivere sin dal primo giorno. Serramenti in PVC/Doppio vetro, impianti e pavimenti rifatti.
Nelle spese condominiali è compresa l’utenza del riscaldamento, aspetto che garantisce una gestione più prevedibile e ordinata dei costi annuali.
La proprietà è completata da una cantina al piano interrato.
Una proposta che coniuga qualità abitativa, funzionalità e convenienza economica, ideale per famiglie, giovani coppie o per chi desidera un investimento sicuro in un contesto residenziale ben servito, a un prezzo particolarmente interessante.
Si informa la gentile clientela che l'indirizzo è indicativo, l'ubicazione per motivi di privacy serve solo per identificare la zona del paese.
Per maggiori info:
IMMOBILIARE VIVA CASA
Tel. 0306377606